Project Details

Project Name

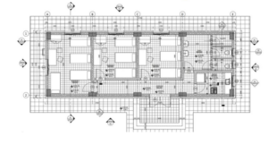
Water Storage and Distribution Infrastructure

Project Leader

Mohamed Alaa

Project description:

This project involved the design and development of a large-scale water storage and distribution system of our Saudi Clients. Key components included the construction of storage facilities, site buildings, and infrastructure for future expansion, all designed with sustainability in mind to minimize environmental impact.

Project Images Gallery