Project Details

Project Name

Structural Guest House Resort Project

Project Leader

Marwan Nabil, BIM Consultant

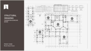
Project description:

Our team provided comprehensive design solutions for this resort project, including 3D drawing designs and structural foundation plans. We developed detailed structural drawings for ground beams, roof plans, and 3D view design details, ensuring a solid and efficient foundation for the resort’s development.

Project Images Gallery